Tọa lạc tại trung tâm Quận 1 – khu vực sầm uất bậc nhất TP.HCM, dự án văn phòng 7 tầng với diện tích 325m² không chỉ là một không gian làm việc hiện đại mà còn là biểu tượng của sự chuyên nghiệp và đẳng cấp. Với thiết kế tối ưu công năng, đề cao tính thẩm mỹ và sự tiện nghi, công trình đáp ứng đầy đủ nhu cầu của một văn phòng cao cấp, đồng thời tích hợp không gian sống riêng biệt cho gia chủ.
Thiết kế kiến trúc của dự án là sự kết hợp hài hòa giữa kiến trúc hiện đại, đường nét mạnh mẽ và vật liệu cao cấp tạo nên một diện mạo sang trọng, ấn tượng giữa lòng thành phố. Không chỉ mang đến một môi trường làm việc lý tưởng, dự án còn góp phần nâng tầm hình ảnh doanh nghiệp, khẳng định vị thế trên thương trường.
THIẾT KẾ MẶT BẰNG CÔNG
Công trình văn phòng tọa lạc tại trung tâm Quận 1, với tổng diện tích sàn 325m² và thiết kế 7 tầng hiện đại, tối ưu công năng. Tòa nhà không chỉ đảm bảo tính thẩm mỹ mà còn hướng đến sự tiện nghi, chuyên nghiệp, phù hợp với môi trường làm việc hiện đại.

Thiết kế mặt bằng công năng của từng tầng được tối ưu hóa, đảm bảo hài hòa giữa thẩm mỹ và tiện ích. Không gian được bố trí khoa học, đáp ứng đầy đủ nhu cầu làm việc, họp nhóm, sinh hoạt chung, nghỉ ngơi và giải trí cho nhân viên.
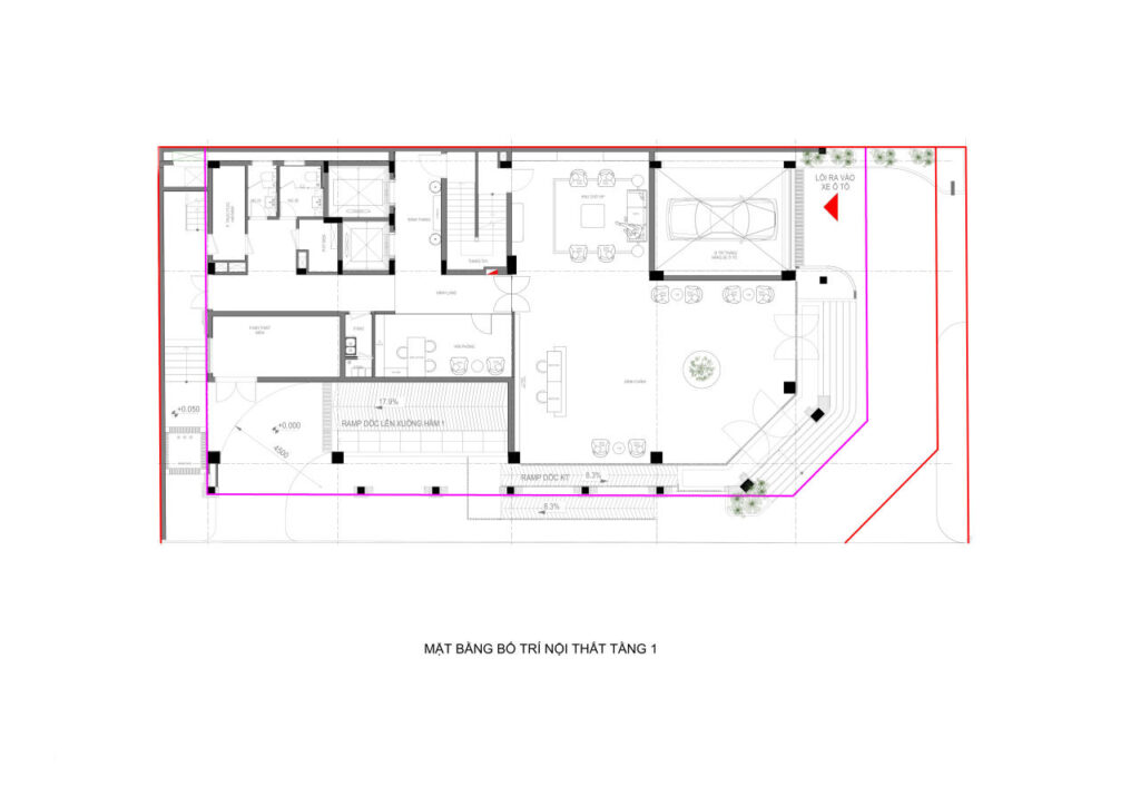
![]()
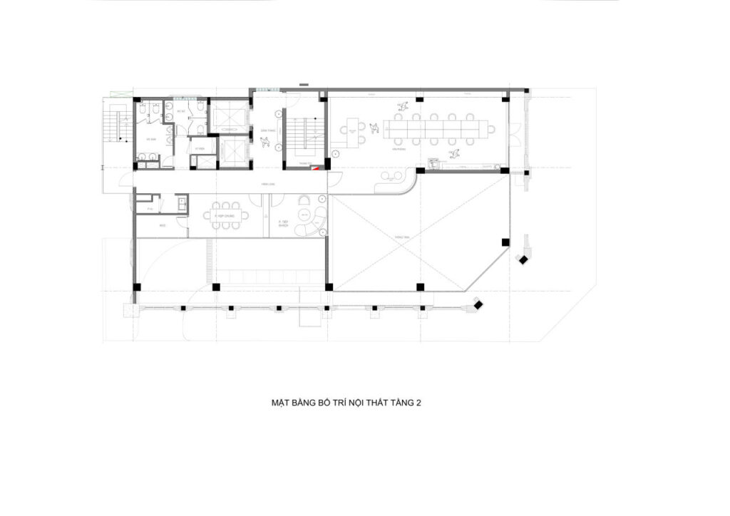
![]()
Thiết kế mặt bằng công năng tầng 6 và 7 được bố trí làm khu vực sinh hoạt riêng của gia chủ, đảm bảo không gian sống tiện nghi, thoải mái và tách biệt với khu vực văn phòng, mang lại sự riêng tư tối đa. Thiết kế mặt bằng công năng tầng 6 bào gồm: Khu vực phòng khách, khu vực bếp ướt + khô, phòng ăn, phòng ngủ master, phòng ngủ giúp việc.
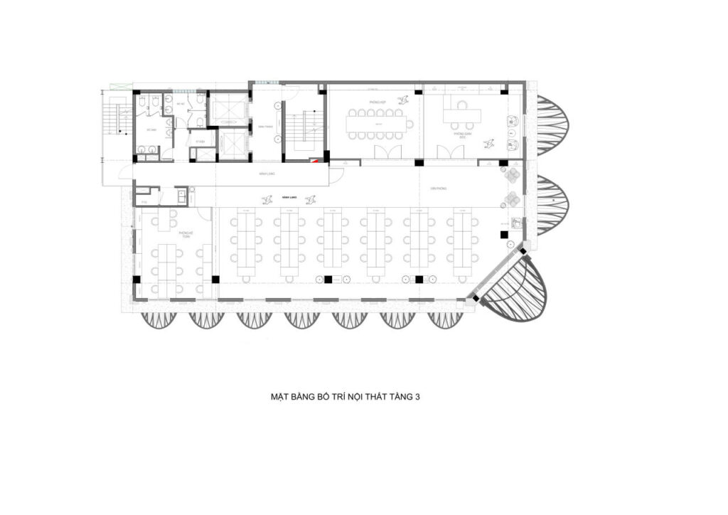
![]()
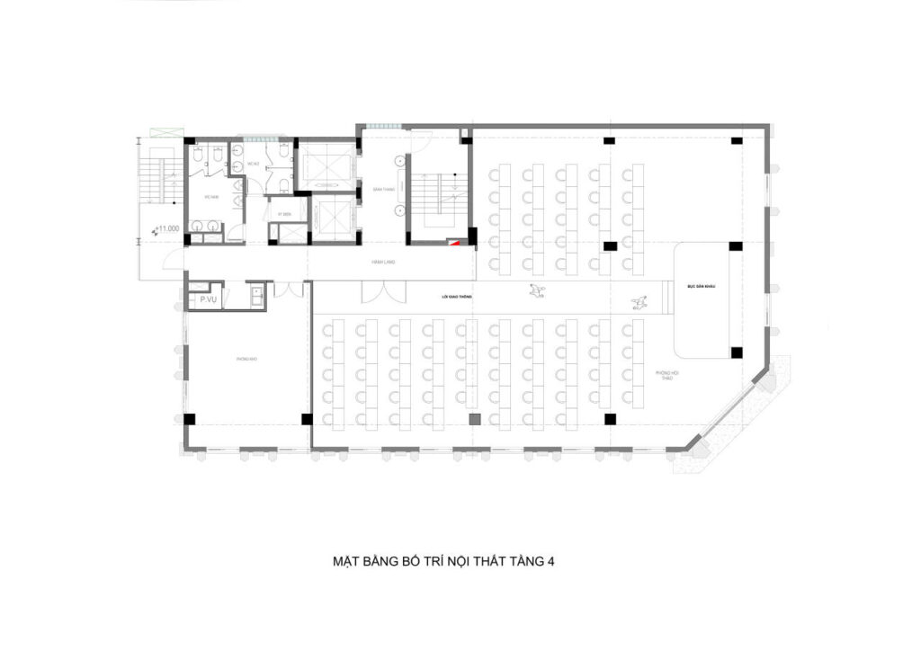
![]()
Thiết kế mặt bằng công năng tòa nhà văn phòng kết hợp nhà ở là sự cân bằng giữa công năng và thẩm mỹ, tối ưu không gian làm việc và nâng cao trải nghiệm cho nhân viên nhưng không kém phần riêng tư cho Gia chủ. Với thiết kế hiện đại, không gian mở và các tiện ích đi kèm, công trình này hứa hẹn sẽ mang lại môi trường làm việc lý tưởng, sáng tạo và đầy cảm hứng.
THIẾT KẾ KIẾN TRÚC
Công trình văn phòng Quận 1 được thiết kế theo phong cách hiện đại và tối ưu công năng, đáp ứng nhu cầu sử dụng linh hoạt của doanh nghiệp. Với quy mô 7 tầng và diện tích 325m², kiến trúc tòa nhà chú trọng đến sự hài hòa giữa thẩm mỹ, công năng và tính tiện nghi.
Mặt tiền tòa nhà được thiết kế với hình khối mạnh mẽ, đường nét tinh giản nhưng sang trọng, kết hợp cùng vật liệu cao cấp như kính, kim loại và bê tông, tạo nên một diện mạo hiện đại, phù hợp với nhịp sống năng động của trung tâm thành phố. Hệ thống cửa kính lớn không chỉ giúp tối ưu ánh sáng tự nhiên mà còn tăng tính kết nối với không gian bên ngoài, mang lại cảm giác thông thoáng, thoải mái.


Bên trong, mỗi tầng được bố trí theo công năng riêng biệt, bao gồm khu vực làm việc, phòng họp, không gian sinh hoạt chung, khu vực thư giãn và giải trí, đảm bảo sự linh hoạt trong vận hành. Đặc biệt, tầng 6 và 7 được thiết kế làm khu vực nhà ở dành cho gia chủ, mang đến sự thuận tiện và riêng tư ngay trong chính tòa nhà.



Thiết kế kiến trúc văn phòng Quận 1 không chỉ hướng đến tính thẩm mỹ mà còn tập trung tối ưu hóa công năng, tạo nên một không gian làm việc hiện đại, chuyên nghiệp và đầy cảm hứng. Sự kết hợp giữa các khu vực làm việc linh hoạt, không gian sinh hoạt chung và tiện ích hỗ trợ giúp nâng cao hiệu suất làm việc, đồng thời mang đến trải nghiệm thoải mái cho nhân viên.
Bên cạnh đó, điểm đặc biệt của công trình chính là việc tích hợp khu nhà ở tại tầng 6 và 7, mang đến sự thuận tiện và riêng tư cho gia chủ. Đây không chỉ là nơi ở, mà còn là không gian thư giãn sau những giờ làm việc căng thẳng, giúp cân bằng giữa công việc và cuộc sống. Việc bố trí hợp lý các khu vực chức năng trong một tòa nhà cao tầng giữa lòng thành phố không chỉ tận dụng tối đa diện tích mà còn đảm bảo sự hài hòa giữa không gian làm việc và sinh hoạt.
Tổng thể công trình là sự kết hợp hoàn hảo giữa thiết kế hiện đại, tiện nghi cao cấp và sự linh hoạt trong công năng sử dụng. Không gian văn phòng mở, sử dụng ánh sáng tự nhiên tối đa cùng hệ thống nội thất sang trọng giúp mang lại môi trường làm việc lý tưởng, phù hợp với xu hướng thiết kế văn phòng trong thời đại mới. Tòa nhà không chỉ là một nơi làm việc mà còn là biểu tượng của sự chuyên nghiệp, sáng tạo và tiện nghi, góp phần nâng tầm hình ảnh doanh nghiệp trong mắt đối tác và khách hàng.
ICON CONSTRUCTION là một công ty xây dựng và thiết kế hàng đầu, nổi bật với sứ mệnh mang đến những sản phẩm kiến trúc chất lượng cao và dịch vụ tốt nhất cho khách hàng. Với nhiều năm kinh nghiệm trong ngành, chúng tôi đã xây dựng được danh tiếng vững chắc trong việc thực hiện các dự án từ nhà ở, villa cho đến các công trình thương mại và công nghiệp.
Hãy để ICON CONSTRUCTION đồng hành cùng bạn trong hành trình xây dựng không gian sống lý tưởng!
THÔNG TIN LIÊN HỆ
Wesite: https://iconconstruction.vn/
Facebook: https://www.facebook.com/iconconstruction.vn
Phone: 0902 314 818 – 0906 346 340 (Mr.Văn)
- Mẫu thiết kế biệt thự cao cấp phong cách Indochine đẹp
- Top 5 công ty xây dựng uy tín tại TP.HCM
- Tổng hợp chi phí xây nhà trọn gói 2024
TƯ VẤN MIỄN PHÍ TỪ KIẾN TRÚC SƯ